Code:
#11960
Price:
€260.000
Area:
71sq.m.
Floor:
N5
Elevator:
Yes
Bedrooms:
1
Bathrooms:
1
WC:
Heating type:
Autonomous
Heating medium:
Heating pump
Year Built:
Under construction
Frames:
Aluminium
Furnishings:
None
Energy class:
Ap
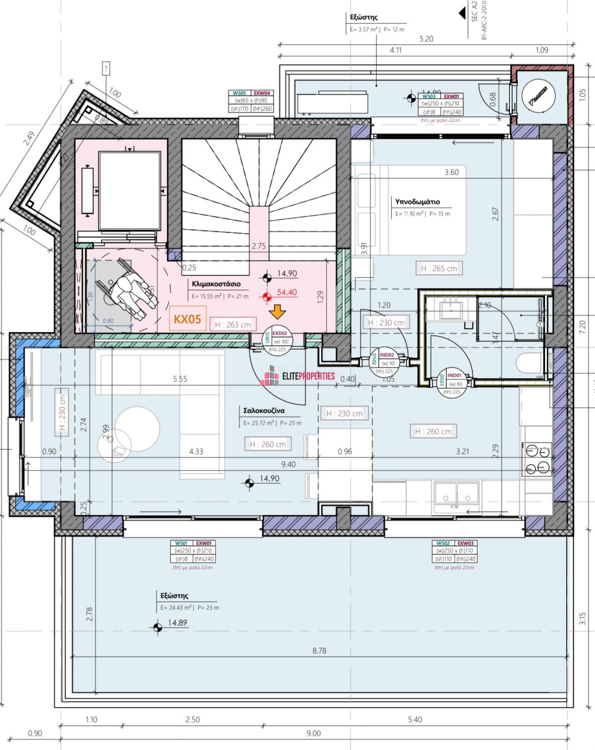
ωλείται νεόδμητο πολυτελές, γωνιακό καιδιαμπερές διαμέρισμα, 71,09τ.μ. μεικτά και 49,05 τ.μ. καθαρά στην περιοχή της Κάτω Τούμπας.
Βρίσκεται στον 5ο όροφο της οικοδομής και διαθέτει ασανσέρ. Το ακίνητο είναι βαμμένο και αποτελεί μια αξιόλογη επιλογή για φοιτητές, οικογένειες και εργαζόμενους.
Αυτή τη στιγμή βρίσκεται υπό κατασκευή.
Αποτελείται από 1 υπνοδωμάτιο με ντουλάπα, σαλοκουζίνα και 1 μπάνιο. Επιπλέον διαθέτει βεράντα με τέντα, αποθήκη και θέση στάθμευσης.
Στα εσωτερικά του στοιχεία αξίζει να σημειωθούν η ντουλάπες και η δομημένη καλωδίωση.
Διαθέτει κουφώματα αλουμινίου Alumil s350 με διπλά τζάμια ηλεκτρικά στόρια και σίτες.
Τα δάπεδα είναι από πλακάκια.
Διαθέτει αυτόνομη ενδοδαπέδια θέρμανση με ΖΝΧ και ψύξη fan coil με αντλία θερμότητας (ατομική).
Η ενεργειακή του κλάση είναι A+. Ο προσανατολισμός είναι ανατολικός.
Βρίσκεται κοντά σε στάση λεωφορείου, σχολείο, πανεπιστήμιο και πάρκο.
Με βάση τα χαρακτηριστικά του μπορεί να χαρακτηριστεί ως μια πολύ καλή επενδυτική επιλογή.
Τέλος διαθέτει μονοφασικό ρεύμα.
Τιμή πώλησης: 260000€. Μέσα μηνιαία κοινόχρηστα: 35€. Το ακίνητο είναι διαθέσιμο από τις: 01/11/2027.
Κωδικός ακινήτου: 11960
Τα χαρακτηριστικά των ακινήτων έχουν καταγραφεί βάσει των πληροφοριών που προσκόμισε ο εντολέας.
Καλέστε μας για μια δωρεάν εκτίμηση της εμπορικής αξίας του ακινήτου σας. Είμαστε στη διάθεση σας για οποιαδήποτε πληροφορία.
Για περισσότερα ακίνητα επισκεφθείτε την ιστοσελίδα μας: http://www.eliteps.gr
Elite Properties
Παπάφη 146, Θεσσαλονίκη, Ελλάδα
http://www.eliteps.gr
info@eliteps.gr
Τηλέφωνο: (+30) 2310 910 810
Κινητό: (+30) 6975 129 294
Προσοχή! Η διεύθυνση στο χάρτη έχει τοποθετηθεί κατά προσέγγιση. Οι ακριβείς πληροφορίες της διεύθυνσης παρέχονται κατά την υπόδειξη του ακινήτου. Για την υπόδειξη του ακινήτου είναι απαραίτητη η υπόδειξη της αστυνομικής ταυτότητας και του Α.Φ.Μ. σας σύμφωνα με τον Ν.4072/11-4-2012 ΦΕΚ 86 Α.
Location:
Τούμπα - Κάτω Τούμπα
Address:
Αρτάκης 38, Θεσσαλονίκη 544 53, Ελλάδα
Copyright © 2025, built with by aBroker.